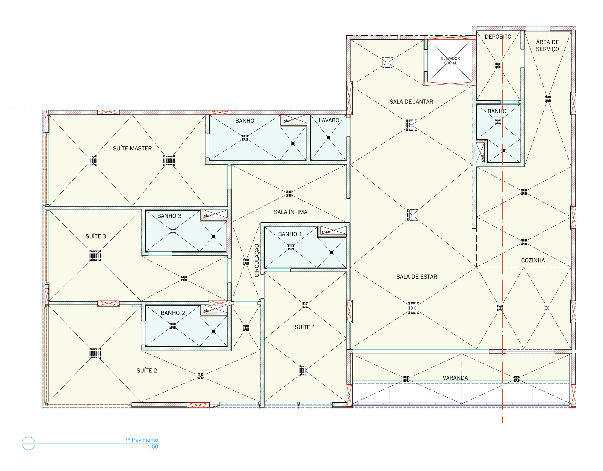
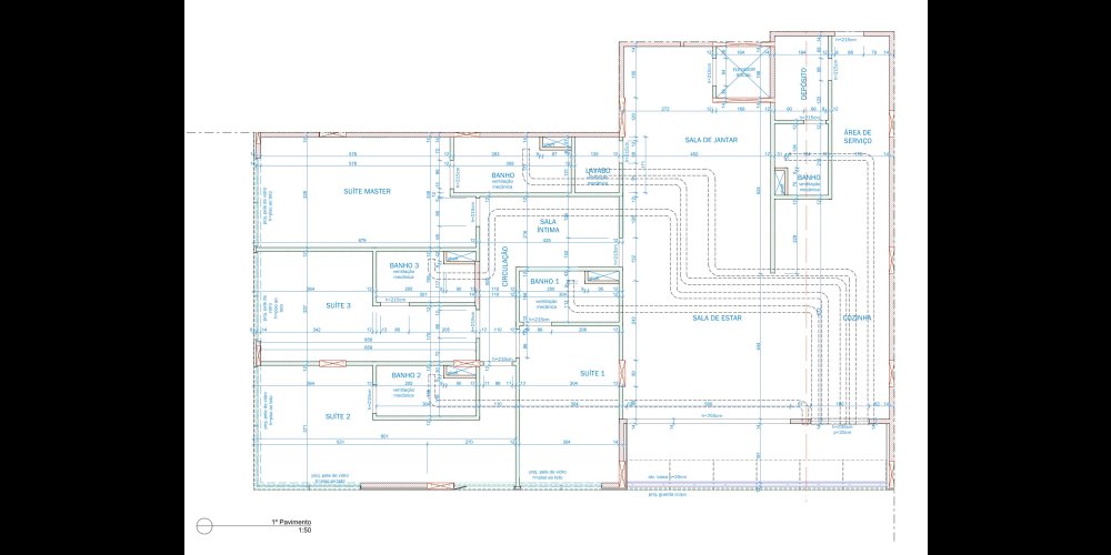
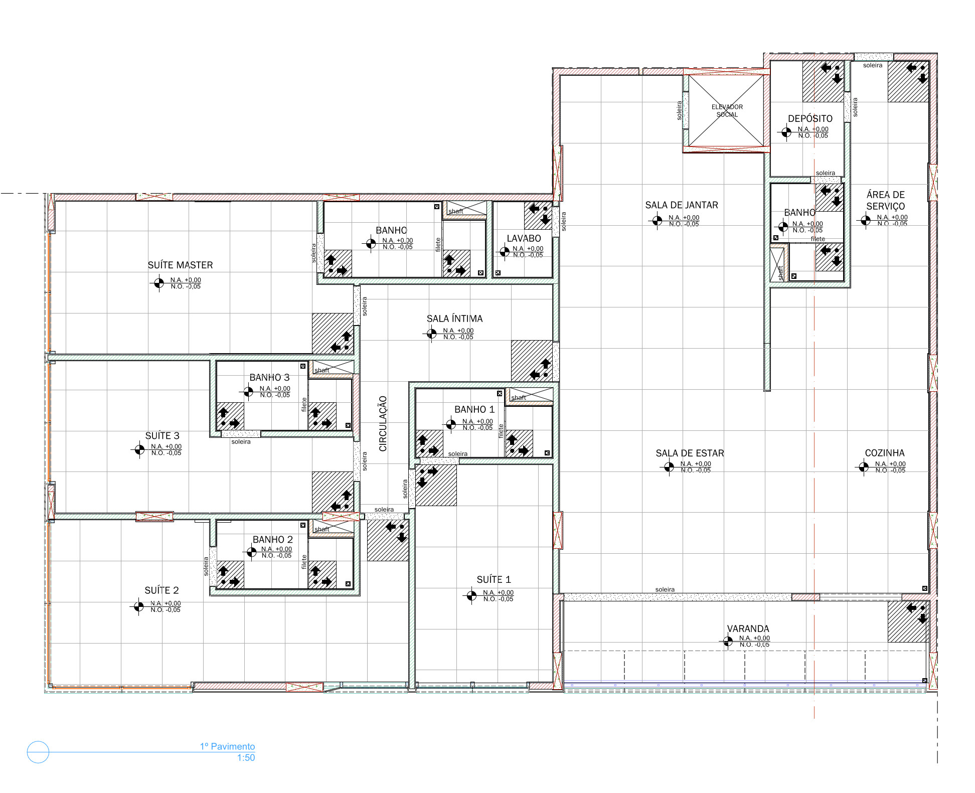
O projeto executivo está incluído no pacote completo. Aqui, lida-se com a materialização do projeto aprovado. Ele reduz riscos de irregularidade, descumprimento de legislações e previne o surgimento de patologias prediais. O projeto concebido já pensando-se em seus últimos estágios de desenvolvimento otimiza tempo - e, por consequência, dinheiro. Esta é a proposta da 3MWE. O projeto arquitetônico que nasce exequível. Um produto que vende segurança ao empreendedor, qualidade de vida ao comprador e excelência técnica aos profissionais envolvidos no projeto. Entendemos que o projeto é uma colaboração horizontal e transversal entre diferentes partes interessadas, cuja harmonia é sine qua non ao sucesso do empreendimento. As áreas comuns decoradas, as perspectivas e plantas humanizadas para venda estão incluídas no pacote de Projeto Executivo.


