As Atribuições Profissionais e Campos de Atuação atingidos, bem como as Atividades desempenhadas pelo Contratado para desenvolvimento dos serviços, se referem exclusivamente à elaboração do Projeto Legal de Arquitetura de forma que esteja apto à aprovação junto ao GDF, de acordo com o Código de Obras do DF e parâmetros urbanísticos constantes na legislação de uso e ocupação do solo.
O projeto legal de arquitetura inicia com o estudo preliminar e finaliza com a aprovação do projeto na Administração Regional competente.Etapas do projeto:
Estudos Preliminares (E.P) desenvolvidos de acordo com as premissas do cliente e as normas previstas para o local. Os E.P. contarão com o layout básico de todos os pavimentos, quadro resumo das áreas dos pavimentos.
Anteprojeto de arquitetura composto por plantas baixas com cotas gerais e corte esquemático, com nível técnico suficiente para a compreensão global da edificação, para definições do projeto legal, e imagem da fachada em nível de estudo.
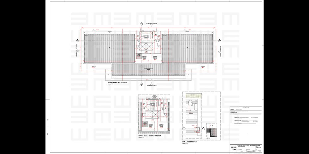
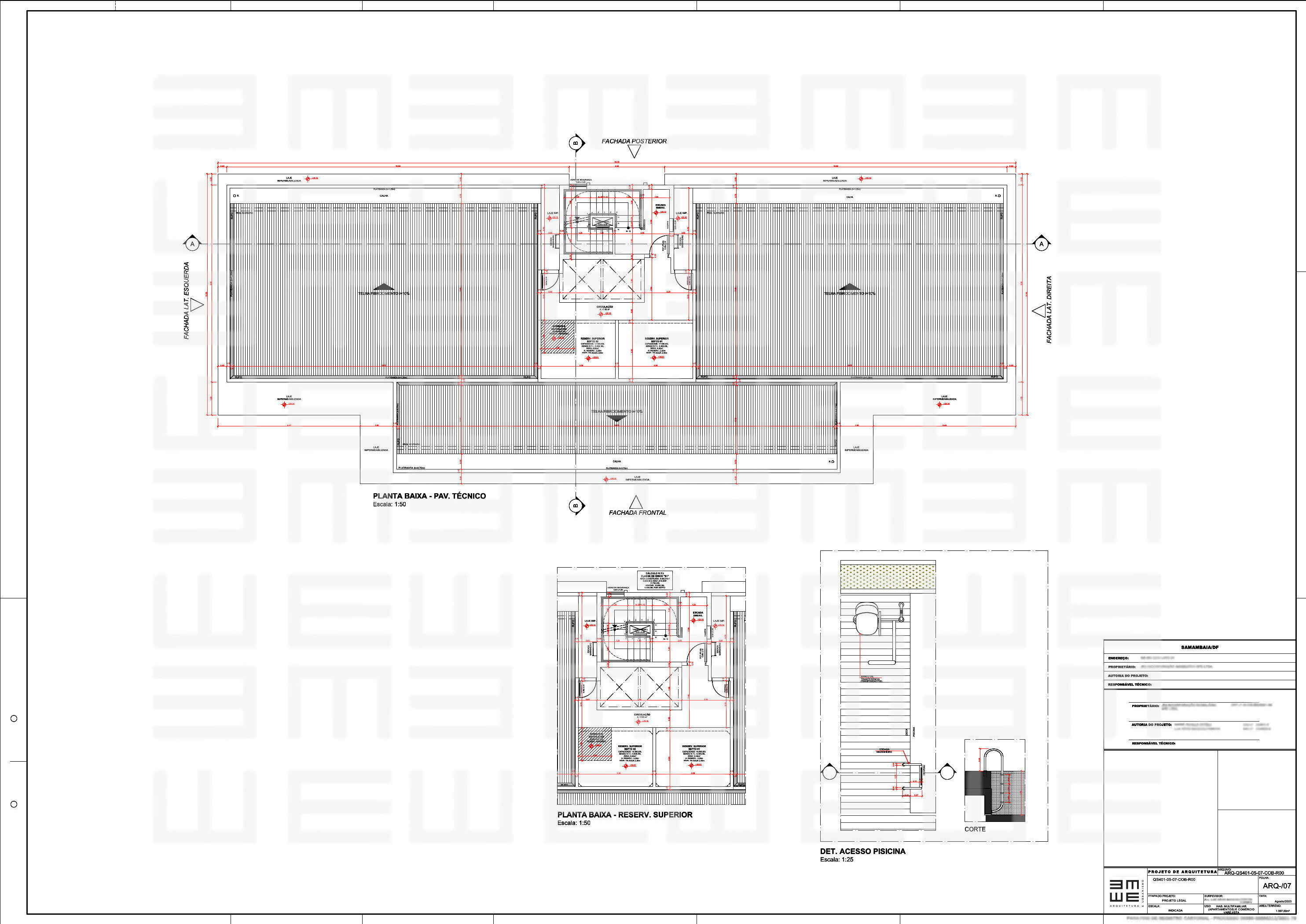
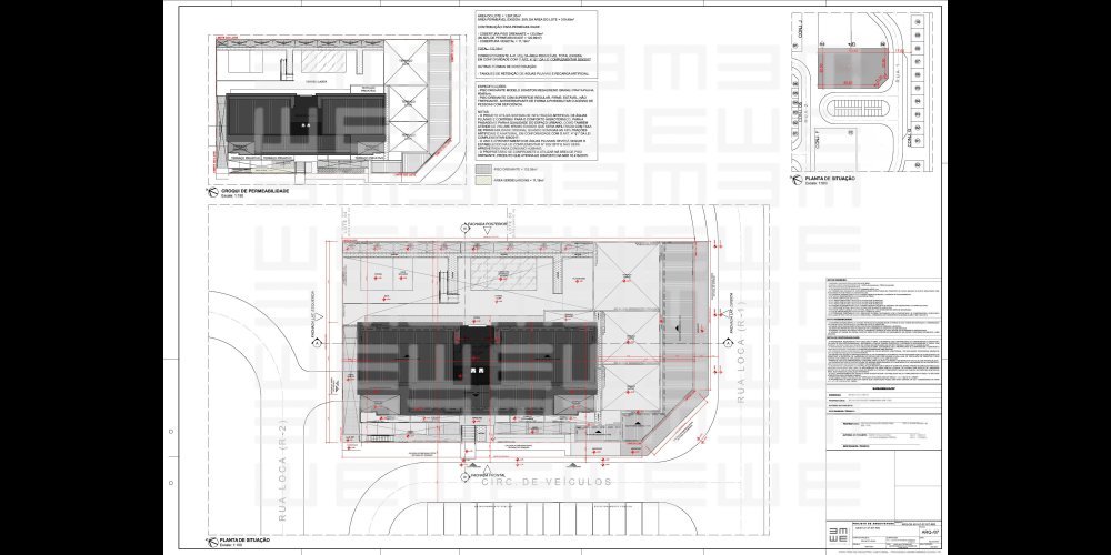
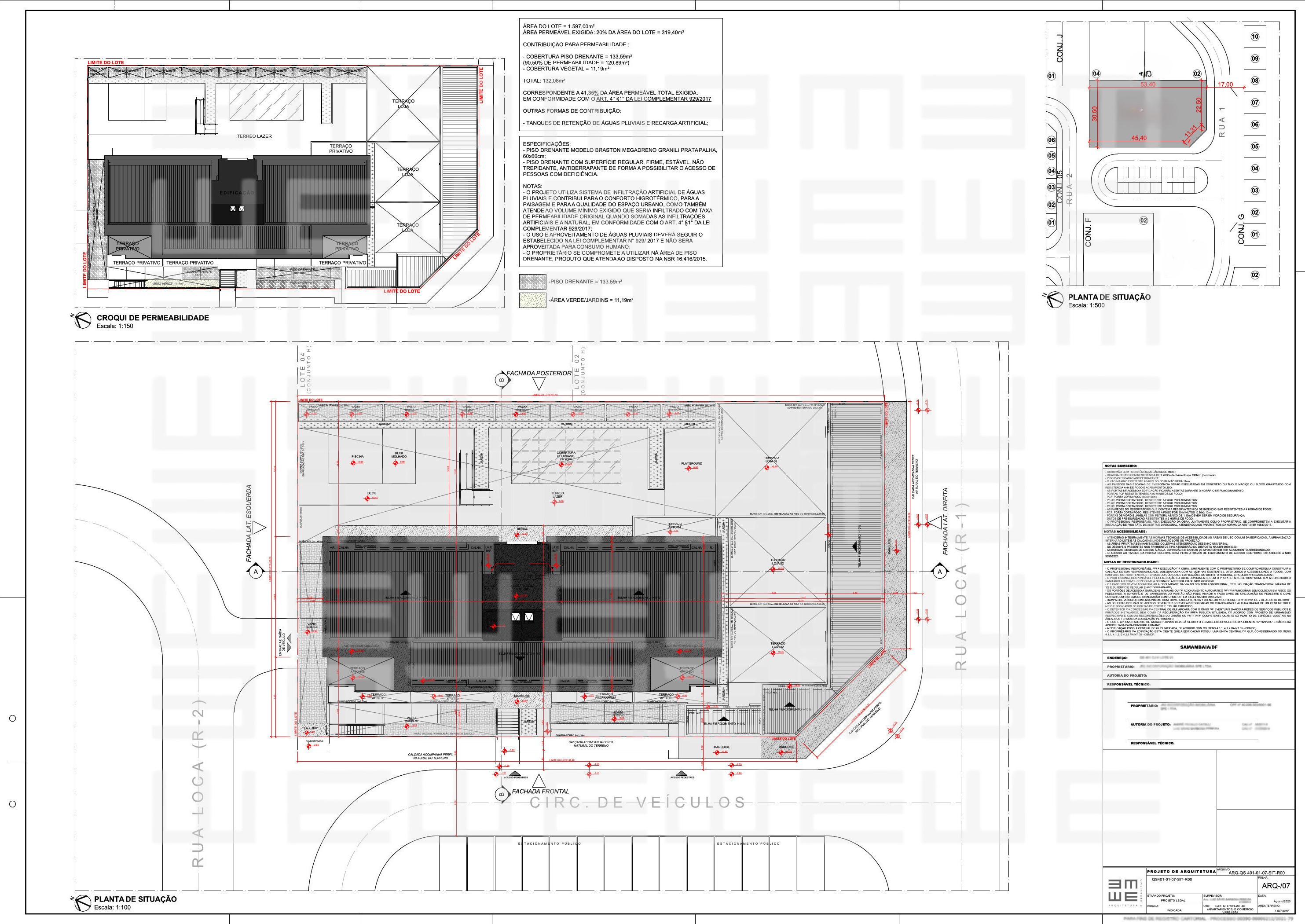
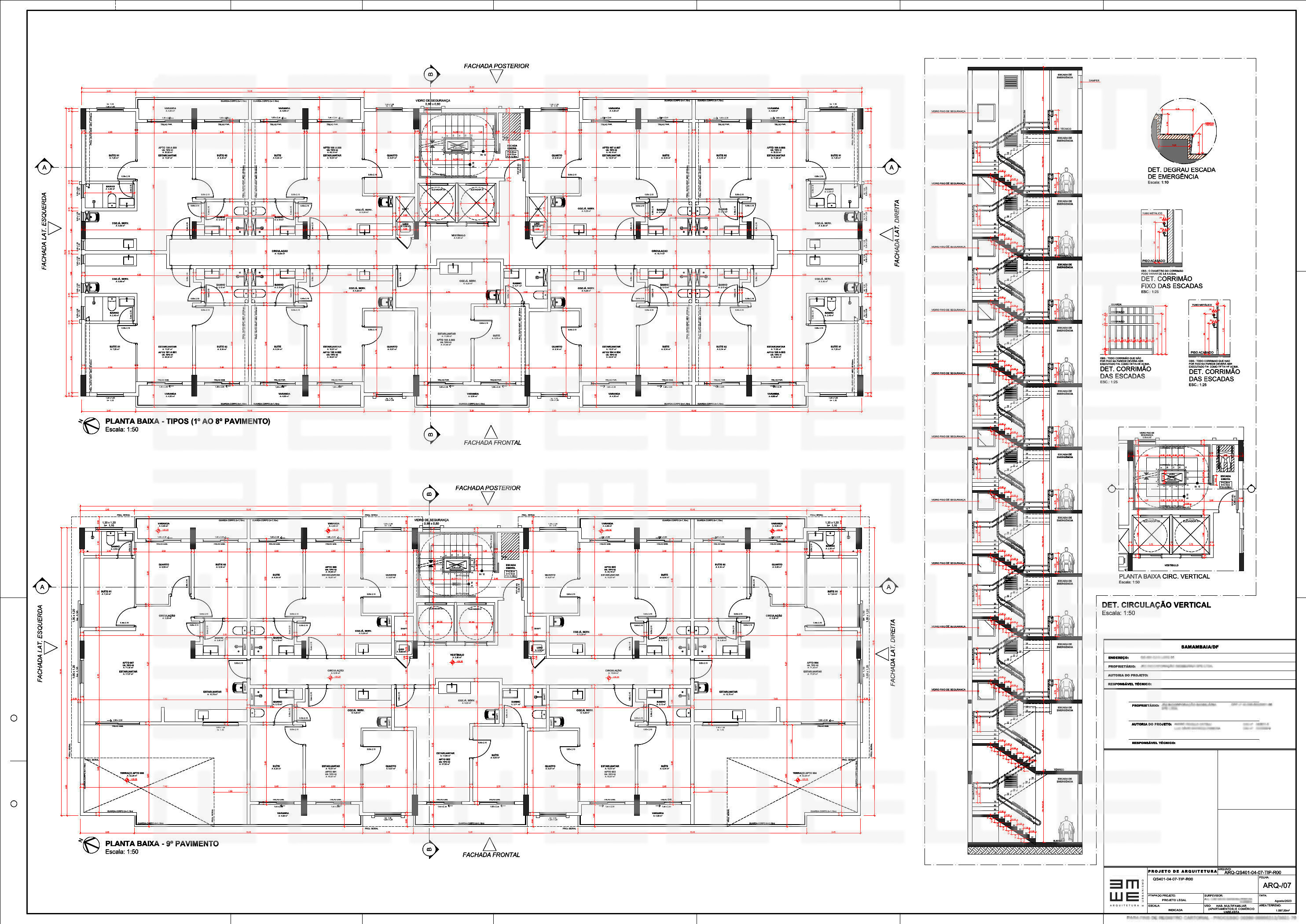
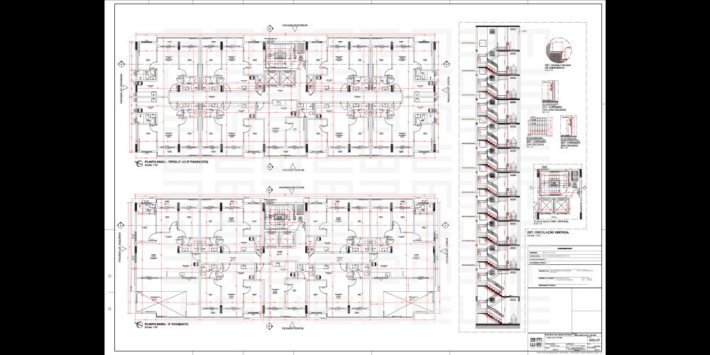
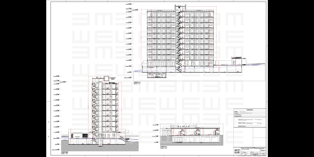
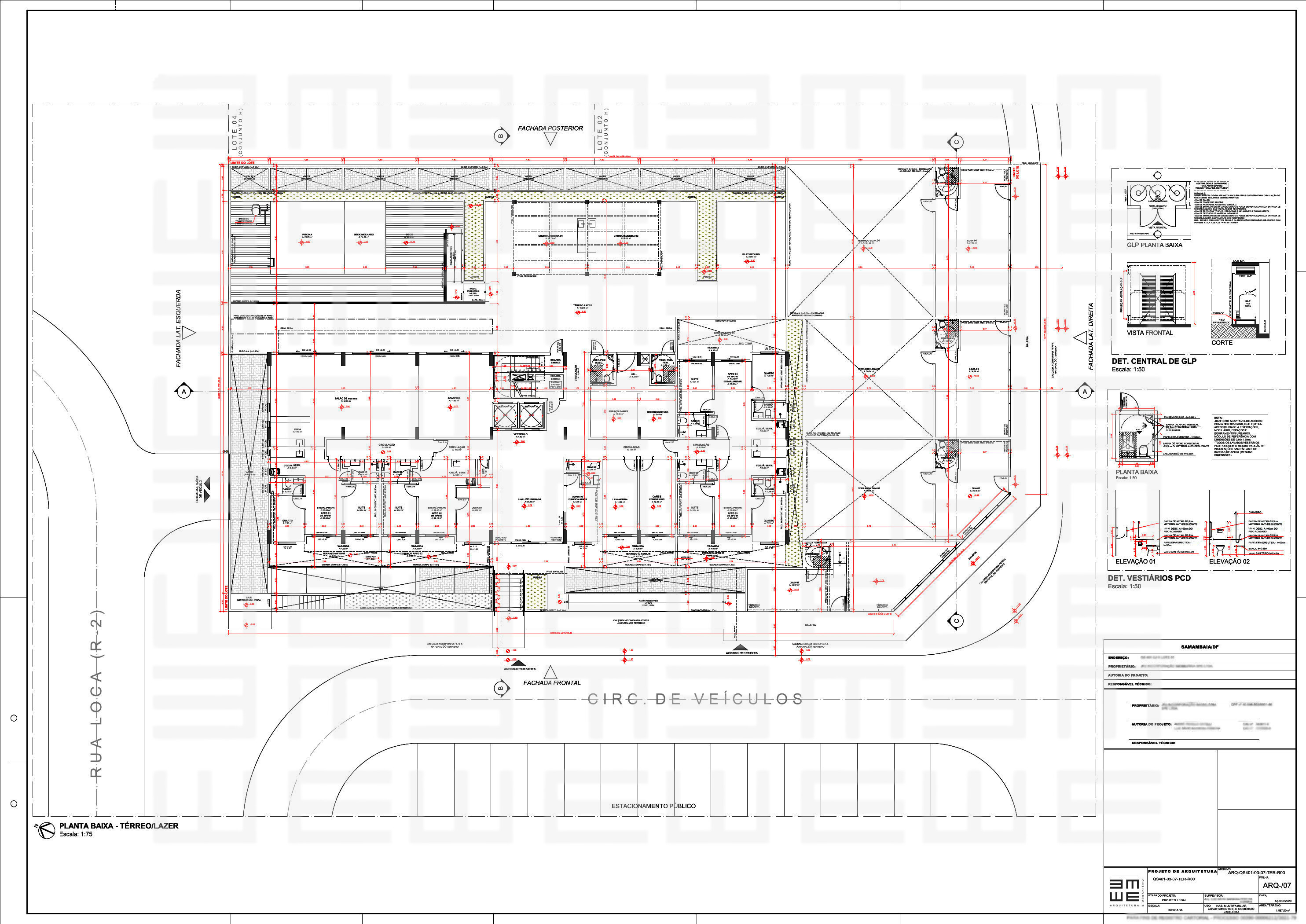
Elaboração do Projeto Legal a partir do anteprojeto definido, composto por planta de situação, locação e cobertura, plantas baixas, cortes, fachadas; com desenhos em escalas, especificações e detalhamentos adequados às exigências dos órgãos licenciadores.
Emissão de Alvará a partir da documentação correta fornecida pelo cliente.
A entrega do Projeto Legal será composta por:
Um jogo do projeto aprovado pelo GDF e pelo Corpo de Bombeiros do Distrito Federal, podendo o segundo ser entregue em um jogo separado do primeiro; com os arquivos digitais no formato DWG, PDF e IFC, entregues por email ou pen-drive; quadro de áreas privativas, comuns e total.


